<
菜单

水蓄冷罐结构原理与容量计算

发布时间: 2018-10-29 发布人:


水蓄冷罐结构原理与容量计算

水蓄冷罐

1水蓄冷形式:双槽式,多槽式、单槽式(隔膜法、长通道隔离、自然分层)

2、斜温层:冷热水交界处生成一定厚度的相对稳定的温度剧变由于斜温层真实厚度占据蓄冷水池内一定空间容积,直接减少可蓄冷的水容量,蓄冷后期,斜温层升至水池上部,使接近冷机的水温逐渐降低,导致冷机减载,甚至引起提前停机,使蓄冷量下降。反之,取冷后期,斜温层降至池底进入取冷水口,导致取冷水温上升,影响用户水温。

3、Fr=惯性力/浮升力:

Fr≤1,保持重力流,维持稳定水温分层;

1﹤Fr<2重力流仍可出现,但不稳定;

Fr≥2惯性流为主,破坏水温分层。

4、分层水蓄冷:环境向蓄冷槽内水传热、温水通过蓄冷槽壁向冷水传热、温水通过斜温层向冷水层导热、温水层由于流动扰动与冷水层发生质交换导致热交换高径比H/D:处于2-4之间,蓄冷效率较高。

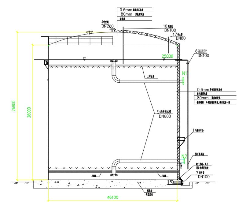
5、开式水蓄冷罐:(注意路由,室外管线布置,埋地管沟;液面在水系统1·2m)

水蓄冷罐结构原理与容量计算

结构:

1)罐体为圆柱形钢制容器。拱顶选用球冠状。

2)罐底由钢板拼装而成,罐底中部的钢板为中幅板,周边的钢板为边缘板。

3)罐壁由多圈钢板组对焊接而成。罐壁要求采用套筒式罐壁板。

4)罐顶有多块扇形板组对焊接而成球冠状,罐顶内侧采用扁钢制成加强筋,各个扇形板之间采用搭接焊缝,整个罐顶与罐壁板上部的角钢圈(或称锁口)焊接成一体。

6、闭式蓄冷罐:

温度测量:每个温度保护套管内有两套测温元件,一用一备(如图所示),当出现故障时只需要在接线端进行线路调换,就可以将备用的投入使用,简单方便。即使两只都用坏了,只需要从套管内抽出温度传感器更换即可。不影响其他的测温点的正常使用,更不影响承压罐的正常使用。

水蓄冷罐结构原理与容量计算

水蓄冷贮槽容积设计确定:

(由暖通设计手册查的 )水蓄冷贮槽容积按下式计算:

V=(QS×P)/(1.163×η×△t)

V—所需贮槽容积,m3

QS—设计15分钟所需蓄冷量;

P—容积率,与贮槽结构、形式等因素有关,一般为1.08~1.30,对分层型及容量大的贮槽可取低限,其余形式及容量小的贮槽可取高限;

η—蓄冷槽效率,与贮槽结构、保温效果和冷温水混合程度有关,具体可参见表1;

△t—蓄冷槽可利用的进出水温差

水蓄冷罐结构原理与容量计算

按照水流量:

q= 0.86Q/t

q—水流量,m3

Q—负荷,KW;

t—温差,℃。


相关推荐
Copyright © 2017 东莞广顺空调机电设备有限公司.All Rights Reserved 犀牛云提供企业云服务